Bureau à vendre à Luxembourg-Gasperich - Réf. 7072249

0 €
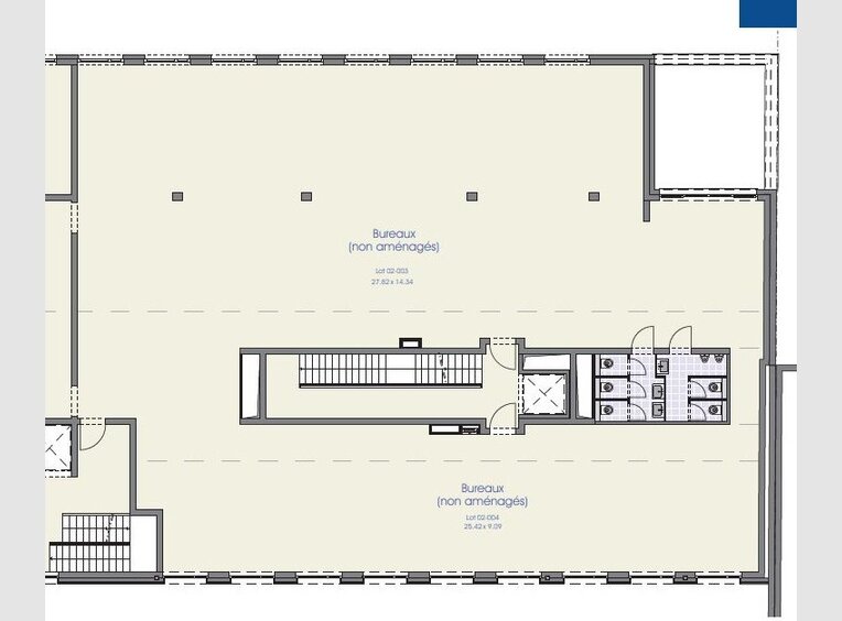
487,00 m2

Détails de la vente

Prix de vente honoraires inclus : 0 €
Disponibilité : Immédiate

Description du bien

Surface de bureaux à vendre dans une résidence mixte idéalement située à l'entrée du quartier de la Cloche d'Or.
Les surfaces très lumineuses sont aménagées en open space, et sont situées au deuxième étage de l'immeuble.
Vente en asset deal pour la surface seule.
Possibilité d'acheter en share deal également la surface adjacente, pour une surface totale brute de 966 m².
3 emplacements de parking au sous-sol de l'immeuble viennent compléter les surfaces (6 emplacements en cas d'achat du plateau entier).
Visites possibles sur demande.
Disponibilité immédiate.

Demander plus d'infos

Description de l'environnement

Bureau à vendre à Luxembourg-Gasperich - Réf. 7072249

Caractéristiques du bien

Classe de performance énergétique
Non communiqué

Étage : 2

Réf. sur le site : 7072249

Réf. agence : Morgan

Câblage électricité

Faux plancheroui
Plancher techniqueoui

Aménagement spécifique

Nombre de places de parking externes3

Contacter l'agence CBRE| Advisory & Transaction Services

CBRE| Advisory & Transaction Services
12, Impasse Drosbach / Building C
L-1882 Luxembourg-Gasperich
Luxembourg
Afficher le numéro
Tous les biens de CBRE| Advisory & Transaction Services Site Internet de CBRE| Advisory & Transaction Services
 

300

 
 
A l'envoi, vous acceptez les conditions d'utilisation
*Champs obligatoires
 
 

Localiser Bureau à vendre à Luxembourg-Gasperich - Réf. 7072249 *

* Attention : L'adresse exacte n’est pas renseignée, le centre de la localité est indiqué sur la carte.

Contact

CBRE| Advisory & Transaction Services
12, Impasse Drosbach / Building C
L-1882 Luxembourg-Gasperich
Luxembourg
Afficher le numéro
 

300

 
 
A l'envoi, vous acceptez les conditions d'utilisation
*Champs obligatoires
 
Tous les biens de CBRE| Advisory & Transaction Services Site Internet de CBRE| Advisory & Transaction Services